Обработка тахеометрического журнала. Журнал тахеометрии
Обработка тахеометрического журнала
Результаты измерений, выполненных на станции ПЗ19, занесены в таблицу №5.
Место нуля вычисляется по формуле:
МО = (КЛ + КП)/2
При наведении со станции ПЗ19 на станцию ПЗ20
МО = (-0º30,5´ + 0º32,5´)/2 = +1´
Угол наклона υ = (КЛ - КП)/2 = КЛ – МО = МО - КП
υ = +1´ - 0º32,5´ = - 0º31,5´
Результаты измерений и вычислений заносятся в табл.5 и табл.№6.
В таблице №7 выполняются вычисления отметок станций. Начальную и конечную отметки округляем до сотых. Вычисляем прямые и обратные превышения, находим среднее значение (графы 3,4,5 соответственно табл.№7). Невязка хода равна разнице средних и теоретических значений превышений:
Σhт = Нкон – Ннач = 109,39 – 106,11 = 3,28м
Ннач = НПЗ8 = 106,11м;
Нкон = НПЗ19 = 109,39м
fhдоп = ± 0,20м, гдеL – длина хода в км.
fh = Σhср - Σhт = 3,38 – 3,28 = 0,10
fhдоп = 0,20= 0,20мfh < fhдоп
Допустимая невязка распределяется с обратным знаком на все превышения.
Отметки станций вычисляются по известной отметке НПЗ8 и исправленным превышениям. Данные записываются в графу8 табл.№7. Отметки реечных точек вычисляются на основании данных таблиц №5 и №6, заносятся в соответствующие графы.
На основании выполненных вычислений производим построение топографического плана в масштабе 1:2000.
Решение задач по топографическому плану строительной площадки
Задача 1. Найти отметку точки А, взятой между двумя горизонталями.
Отметка точки А определяется по формуле:
НА = НС – i*а, где i - уклон, i = (НС – НВ)/d
d = 42,4м (по чертежу) i = 0,024
НА = 105 – 0,024*19,9 = 104,52м
Задача 2. Определить уклон отрезка ВС, проведенного между соседними горизонталями.
Отрезок ВС проведен перпендикулярно горизонталям. Уклон i = 0,024.
Задача 3. От точки ПЗ8 к точке II провести кратчайшую линию с уклоном i=0.02.
Контрольная работа №2
РЕШЕНИЕ ЗАДАЧ ПО ОБРАБОТКЕ РЕЗУЛЬТАТОВ
ГЕОМЕТРИЧЕСКОГО НИВЕЛИРОВАНИЯ
Задача №1. Дана отметка НА точки А. Вычислить отметку точки В через ее превышение над точкой А, если по нивелирным рейкам получены отсчеты: в точке А … а = 1454мм, в точке В … b = 2878мм.
Решение
НА = НПЗ8 = 106,106м
НВ = НА + (а-b) = 106,106 + (1,454 – 2,878) = 104,682м
Задача №2. Вычислить отметку точки НВ через горизонт инструмента.
Решение
ГИ = НА+ а = 106,106 + 1,454 = 107,560м
НВ = ГИ – b = 107,560 – 2,878 = 104,682м
СОСТАВЛЕНИЕ ПРОФИЛЯ ТРАССЫ ДОРОГИ
По данным журнала геометрического нивелирования и пикетажного журнала построить продольный профиль участка трассы автодороги. Нанести на продольный профиль проектную линию.
Исходные данные
Пикетажный журнал (рис. 3). Румб СВ: 48º50´ первоначального направления трассы. Первый правый угол поворота трассы ВУ№1 = 35º45´. Второй левый угол поворота ВУ№2 = 56º20´.
Журнал геометрического нивелирования (табл.№8). Отметка Реп.19 принимается равной отметке точки ПЗ8. НПЗ8 = 106,106м. Отметка Реп.20 принимается Нреп.19 - 2,101м. Нреп.20 = 104,005м.
Данные для нанесения на продольный профиль проектной линии:
на ПК0 запроектирована насыпь высотой 0,5м;
на участке от ПК) до точки ПК1 + 80 уклон проектной линии iI = -0,020;
на участке от точки ПК1 + 80 до ПК4 – горизонтальная площадка.
на последнем участке трассы от ПК4 до ПК5 уклон i3 = + 0,015.
Проектирование на поперечном профиле не производилось.
studfiles.net
Журнал тахеометрической съемки — МегаЛекции
Вариант 0-1 Приложение А
| № станции | № точек наблюдения | Расстояние определенное дальномером | Отсчеты | Угол наклона n | Горизонтальное проложение d | Превышение h | Отметка точек | Примечание | ||||
| По горизонтальному кругу | По вертикальному кругу | |||||||||||
| ° | ' | ° | ' | |||||||||
| Станция ориентирована на север | ||||||||||||
| С | v = i i = 1,40 м КЛ 5º37¹ КП –5º 37¹ | |||||||||||
| Т | 50,00 | Болото | ||||||||||
| А | 34,00 | -1 | Болото | |||||||||
| Н | 68,00 | -0 | 38,5 | Болото | ||||||||
| Ц | 41,00 | -0 | ||||||||||
| И | 72,00 | -0 | Все отсчеты | |||||||||
| Я | 29,00 | Сняты при | ||||||||||
| 34,00 | КЛ | |||||||||||
| I | 36,00 | |||||||||||
| 64,00 | ||||||||||||
| 33,00 | -0 | |||||||||||
| 74,00 | -0 | 35,5 | Болото | |||||||||
| 49,00 | -0 | Болото | ||||||||||
| стII | 90,00 | |||||||||||
| Станция ориентирована на станцию I | ||||||||||||
| С | v = i i = 1,47 КЛ 7º 53¹ КП –7º 53¹ | |||||||||||
| Т | стI | 90,00 | -1 | |||||||||
| А | 39,00 | -0 | Все отсчеты | |||||||||
| Н | 44,00 | -0 | Сняты при | |||||||||
| Ц | 39,00 | -0 | КЛ | |||||||||
| И | 33,00 | |||||||||||
| Я | 71,00 | |||||||||||
| 39,00 | ||||||||||||
| II | 74,00 | |||||||||||
| 47,00 | ||||||||||||
| 40,00 | ||||||||||||
| стIII | 90,00 | |||||||||||
| Станция ориентирована на станцию II | ||||||||||||
| С | v =i i= 1,50 КЛ 3º 51¹ КП –3º 51¹ | |||||||||||
| Т | стII | 90,00 | ||||||||||
| А | 42,00 | Все отсчеты | ||||||||||
| Н | 68,00 | Сняты при | ||||||||||
| Ц | 52,00 | КЛ | ||||||||||
| И | 29,00 | -0 | ||||||||||
| Я | 39,00 | -0 | ||||||||||
| 70,00 | -0 | |||||||||||
| III | 29,00 | |||||||||||
| ст I | 90,00 | -1 | ||||||||||
Журнал тахеометрической съемки
Вариант 2-3 Приложение А
| № станции | № точек наблюдения | Расстояние определенное дальномером | Отсчеты | Угол наклонаn | Горизонтальное проложение d | Превышение h | Отметка точек | Примечание | ||||
| По горизонтальному кругу | По вертикальному кругу | |||||||||||
| ° | ' | ° | ' | |||||||||
| Станция ориентирована на север | ||||||||||||
| С | v = i i = 1,53 м КЛ 7º59¹ КП –7 59¹ | |||||||||||
| Т | -2 | |||||||||||
| А | -2 | 23,5 | ||||||||||
| Н | -2 | |||||||||||
| Ц | 28,5 | -2 | 18,5 | |||||||||
| И | -1 | 33,5 | Все отсчеты | |||||||||
| Я | сняты при | |||||||||||
| -1 | КЛ | |||||||||||
| I | 27,5 | |||||||||||
| 20,5 | ||||||||||||
| 11,5 | ||||||||||||
| 28,5 | 26,5 | |||||||||||
| 25,5 | -1 | |||||||||||
| -2 | ||||||||||||
| 42,5 | -1 | |||||||||||
| -2 | 13,5 | |||||||||||
| Ст II | 11,5 | |||||||||||
| Станция ориентирована на станцию I | ||||||||||||
| С | v = i i = 1,68 КЛ 8º 30¹ КП –8º 30¹ | |||||||||||
| Т | ст I | 11,5 | ||||||||||
| А | -1 | 17,5 | Все отсчеты | |||||||||
| Н | -1 | 31,5 | сняты при | |||||||||
| Ц | -1 | 14,5 | КЛ | |||||||||
| И | 47,5 | |||||||||||
| Я | 15,5 | |||||||||||
| 1,5 | ||||||||||||
| II | ||||||||||||
| -1 | ||||||||||||
| 39,5 | -2 | |||||||||||
| -3 | 14,5 | |||||||||||
| -2 | ||||||||||||
| стIII | 78,5 | 15,5 | ||||||||||
| Станция ориентирована на станцию II | ||||||||||||
| С | v =i i= 1,39 КЛ 3º 51¹ КП –3º 51¹ | |||||||||||
| Т | ст II | 78,5 | 15,5 | |||||||||
| А | -2 | Все отсчеты | ||||||||||
| Н | -2 | сняты при | ||||||||||
| Ц | -1 | КЛ | ||||||||||
| И | ||||||||||||
| Я | ||||||||||||
| 23,5 | ||||||||||||
| III | ||||||||||||
| -1 | ||||||||||||
| Ст I | 27,5 | |||||||||||
Журнал тахеометрической съемки
Вариант 4-5 Приложение А
| № станции | № точек наблюдения | Расстояние определенное дальномером | Отсчеты | Угол наклонаn | Горизонтальное проложение d | Превышение h | Отметка точек | Примечание | |||||
| По горизонтальному кругу | По вертикальному кругу | ||||||||||||
| градус | минут | градус | минут | ||||||||||
| Станция ориентирована на север | |||||||||||||
| С | v = i i = 1,40 м КЛ 7º53¹ КП –7 53¹ | ||||||||||||
| Т | 40,00 | ||||||||||||
| А | 71,00 | ||||||||||||
| Н | 32,00 | ||||||||||||
| Ц | 64,00 | ||||||||||||
| И | 51,00 | Все отсчеты | |||||||||||
| Я | 49,00 | -1 | сняты при | ||||||||||
| 51,00 | -1 | КЛ | |||||||||||
| I | 86,00 | -1 | |||||||||||
| 28,00 | -1 | ||||||||||||
| 74,00 | -1 | ||||||||||||
| 50,00 | -0 | ||||||||||||
| 44,00 | |||||||||||||
| Ст II | 120,00 | ||||||||||||
| Станция ориентирована на станцию I | |||||||||||||
| С | v = i i = 1,30 КЛ 6º 15¹ КП –6º 15¹ | ||||||||||||
| Т | ст I | 120,00 | -0 | ||||||||||
| А | 62,00 | Все отсчеты | |||||||||||
| Н | 27,00 | сняты при | |||||||||||
| Ц | 65,00 | КЛ | |||||||||||
| И | 56,00 | ||||||||||||
| Я | 53,00 | -0 | |||||||||||
| 40,00 | -0 | ||||||||||||
| II | 80,00 | -1 | |||||||||||
| стIII | 80,00 | -3 | |||||||||||
| Станция ориентирована на станцию II | |||||||||||||
| С | v =i i= 1,35 КЛ 3º 10¹ КП –3º 10¹ | ||||||||||||
| Т | Ст II | 80,00 | |||||||||||
| А | 51,00 | Все отсчеты | |||||||||||
| Н | 38,00 | сняты при | |||||||||||
| Ц | 58,00 | КЛ | |||||||||||
| И | 59,00 | ||||||||||||
| Я | 45,00 | ||||||||||||
| III | Ст I | 105,00 | |||||||||||
Журнал тахеометрической съемки
Вариант 6-7 Приложение А
| № станции | № точек наблюдения | Расстояние определенное дальномером | Отсчеты | Угол наклона n | Горизонтальное проложение d | Превышение h | Отметка точек | Примечание | |||||
| По горизонтальному кругу | По вертикальному кругу | ||||||||||||
| Станция ориентирована на север | |||||||||||||
| С | v = i i = 1,30 м КЛ 6º53¹ КП –6 53¹ | ||||||||||||
| Т | 54,50 | -3 | Урез воды | ||||||||||
| А | 44,50 | -3 | Урез воды | ||||||||||
| Н | 24,00 | -2 | |||||||||||
| Ц | 51,50 | -3 | Урез воды | ||||||||||
| И | 23,00 | -2 | |||||||||||
| Я | 38,00 | -2 | Все отсчеты | ||||||||||
| 33,00 | -1 | сняты при | |||||||||||
| I | 34,00 | КЛ | |||||||||||
| 56,50 | |||||||||||||
| 59,00 | |||||||||||||
| 53,00 | -1 | ||||||||||||
| Ст II | 118,50 | ||||||||||||
| Станция ориентирована на станцию I | |||||||||||||
| С | v = i i = 1,6 0 КЛ 8º 24¹ КП –8º 24¹ | ||||||||||||
| Т | Ст I | 118,50 | -2 | ||||||||||
| А | 79,00 | -3 | Все отсчеты | ||||||||||
| Н | 48,00 | -2 | сняты при | ||||||||||
| Ц | 49,50 | -3 | КЛ | ||||||||||
| И | 79,00 | -2 | |||||||||||
| Я | 45,00 | -2 | |||||||||||
| 86,00 | -1 | ||||||||||||
| II | 43,00 | -0 | |||||||||||
| 34,00 | |||||||||||||
| 26,00 | |||||||||||||
| 46,00 | -0 | ||||||||||||
| 64,00 | -1 | ||||||||||||
| стIII | 113,00 | -1 | |||||||||||
| Станция ориентирована на станцию II | |||||||||||||
| С | v =i i= 1,30 КЛ 7º 56¹ КП –7º 56¹ | ||||||||||||
| Т | Ст II | 25,50 | -4 | ||||||||||
| А | 58,50 | -3 | |||||||||||
| Н | 36,50 | -4 | |||||||||||
| Ц | 58,00 | -3 | Урез воды | ||||||||||
| И | 65,00 | -3 | Урез воды | ||||||||||
| Я | 65,00 | -2 | Все отсчеты | ||||||||||
| 49,50 | -1 | сняты при | |||||||||||
| III | 52,00 | -1 | КЛ | ||||||||||
| 28,00 | |||||||||||||
| 25,00 | |||||||||||||
| 127,00 | -0 | ||||||||||||
| Ст I | 127,00 | ||||||||||||
Журнал тахеометрической съемки
Вариант 8-9 Приложение А
| № станции | № точек наблюдения | Расстояние определенное дальномером | Отсчеты | Угол наклонаn | Горизонтальное проложение d | Превышение h | Отметка точек | Примечание | |||
| По горизонтальному кругу | По вертикальному кругу | ||||||||||
| градус | минут | градус | минут | ||||||||
| Станция ориентирована на север | |||||||||||
| С | v = i i = 1,40 м КЛ 7º53¹ КП –7 53¹ | ||||||||||
| Т | 25,50 | -4 | |||||||||
| А | 58,50 | -3 | |||||||||
| Н | 36,50 | -4 | |||||||||
| Ц | 58,00 | -3 | Урез воды | ||||||||
| И | 65,00 | -3 | Урез воды | ||||||||
| Я | 65,00 | -2 | Все отсчеты | ||||||||
| 49,50 | -1 | сняты при | |||||||||
| I | 52,00 | -1 | КЛ | ||||||||
| 28,00 | |||||||||||
| 25,00 | |||||||||||
| Ст II | 127,00 | -0 | |||||||||
| Станция ориентирована на станцию I | |||||||||||
| С | v = i i = 1,40 КЛ 8º 34¹ КП –8º 34¹ | ||||||||||
| Т | ст I | 127,00 | |||||||||
| А | 54,50 | -3 | Урез воды | ||||||||
| Н | 44,50 | -3 | Урез воды | ||||||||
| Ц | 24,00 | -2 | |||||||||
| И | 51,50 | -3 | Урез воды | ||||||||
| Я | 23,00 | -2 | |||||||||
| 38,00 | -2 | Все отсчеты | |||||||||
| II | 33,00 | -1 | сняты при | ||||||||
| 34,00 | КЛ | ||||||||||
| 56,50 | |||||||||||
| 59,00 | |||||||||||
| 53,00 | -1 | ||||||||||
| стIII | 118,50 | ||||||||||
| Станция ориентирована на станцию II | |||||||||||
| С | v =i i= 1,50 КЛ 7º 06¹ КП –7º 06¹ | ||||||||||
| Т | Ст II | 118,50 | -2 | ||||||||
| А | 79,00 | -3 | Все отсчеты | ||||||||
| Н | 48,00 | -2 | сняты при | ||||||||
| Ц | 49,50 | -3 | КЛ | ||||||||
| И | 79,00 | -2 | |||||||||
| Я | 45,00 | -2 | |||||||||
| 86,00 | -1 | ||||||||||
| III | 43,00 | -0 | |||||||||
| 34,00 | |||||||||||
| 26,00 | |||||||||||
| 46,00 | -0 | ||||||||||
| 64,00 | -1 | ||||||||||
| Ст I | 113,00 | -1 |
Отметки станции I Приложение В
| Варианты | Отметки станции I, (м) | |
| 270, 550 | ||
| 270,310 | ||
| 270, 672 | ||
| 200, 325 | ||
| 50, 160 | ||
| 261, 12 | ||
| 316, 74 | ||
| 55, 153 | ||
| 188, 102 | ||
| 252, 018 | ||
| 280, 359 | ||
| 189, 259 | ||
| 89, 175 | ||
| 283, 358 | ||
| 147, 231 | ||
| 170, 250 | ||
| 75, 150 | ||
| 20, 850 | ||
| 91, 185 | ||
| 310, 100 | ||
| 250, 330 | ||
| 56, 56 | ||
| 250, 323 | ||
| 111, 126 | ||
| 264, 117 | ||
| 61, 163 | ||
| 307, 450 | ||
| 128, 044 | ||
| 238, 348 | ||
| 133, 243 |
Библиографический список
1. Вагин А.А., Коучия В.А., Хренов Л.С. Практикум по инженерной геодезии: Учебное пособие для вузов.-М.:Недра,1989.-285с:ил.
2. Шерстюков А.Д., Балашов А.И.Справочное пособие по геодезическим работам при возведении гидротехнических сооружений.-М:Недра,1990.-312с:ил.
3. Маслов А.В. и др. Геодезия. – М.: Недра, 1980. – 528 с.
4. Баканова В.В. и др. Практикум по геодезии. – М.: Недра, 1983.– 240 с.
©2015- 2018 megalektsii.ru Все авторские права принадлежат авторам лекционных материалов.
megalektsii.ru
1.4. Обработка журнала тахеометрической съемки
Обработка ведется в следующей последовательности.
1. Вычисляют дальномерные расстояния от станции до реечных точек по формуле
.
Расстояние от станции I до реечной точки № 1 будет равно (см. табл.3)
.
2. Находят угол наклона визирной оси трубы теодолита
δ = КЛ – МО.
Угол наклона визирной оси со станции I на реечную точку № 1 составит (см. табл.3)
δ = – 2○ 56′– 0○ 01′ = –2○ 57′.
3. Определяют превышение между станцией и реечными точками по формуле
.
Превышение между станцией I и реечной точкой № 1 составит (см. табл.3)
.
4. Вычисляют горизонтальное проложение между станцией и реечной точкой
.
Горизонтальное проложение между станцией I и реечной точкой № 1 составит (см. табл.3)
.
5. Находят отметки реечных точек по формуле
.
Отметка реечной точкой № 1 будет равна (см. табл.3)
.
1.5. Построение плана теодолитно-тахеометрической съемки
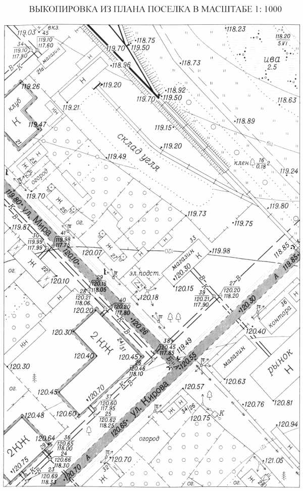
Построение плана теодолитно-тахеометрической съемки выполняется на листе чертежной бумаги, размеры которого определяются в зависимости от размеров координатной сетки со стороной квадрата, равной 100 мм. Масштаб плана - 1:1000 (в 1 см 10 метров).
Размеры координатной сетки, т.е. число квадратов (девять или двенадцать) выбирают с таким расчетом, чтобы план разместился внутри границ этой сетки. Координатную сетку можно построить при помощи линейки Дробышева, а при ее отсутствии - посредством циркуля и масштабной линейки.
На листе бумаги прочерчивают две диагонали, проходящие через углы листа. От точки пересечения диагоналей по ним откладывают циркулем равные отрезки. Соединяя концы отрезков прямыми линиями, получают правильный прямоугольник. На сторонах прямоугольника откладывают отрезки, равные длине стороны квадрата (100мм). Соединив концы отрезков, расположенные на противоположных сторонах правильного прямоугольника, получают координатную сетку. Правильность построения сетки проверяют путем сравнения в каждом квадрате диагоналей и сторон квадрата. Допустимое расхождение - 0,2 мм. Оформление координатной сетки показано на рис. 3.
Точки полигона I, II, III, IV, V наносятся на план по координатам при помощи поперечного масштаба, циркуля и линейки. Правильность нанесения полигона проверяется сравнением длин и румбов его сторон, полученных на плане, с данными ведомости вычисления координат. После изображения на плане точек съемочной сетки приступают к вычерчиванию ситуации, руководствуясь абрисом (см. рис.1).
Например, чтобы нанести ЛЭП низкого напряжения, необходимо от точки V по линии V-I отложить отрезок, равный 16 м (в масштабе плана это 16 мм), и от точки II по линии II-III - 108 м, полученные на линии V-I и II-III точки соединить прямой линией (см. рис. 1,а).
Точки А, Б, В, Г, Д, Е, характеризующие расположение рейки на плане, наносятся путем угловой засечки (см. рис.1,б и расположенную рядом таблицу). Эти точки на оформленном плане не показываются.
Для вычерчивания плана теодолитно-тахеометрической съемки нужна тушь черного, зеленого и коричневого цветов.
Условные обозначения точки теодолитного хода, луга, редкого леса, строящейся дороги с покрытием, фруктового сада, деревянного забора, ЛЭП и координатная сетка с надписями выполняются черной тушью. Горизонтали и их отметка изображаются коричневой тушью (толщина основных горизонталей - 0,1 мм, основных утолщенных - 0,25 мм), берега реки - зеленой (толщина 0,2 мм).
Положение реечных точек тахеометрической съемки 1,2,3....20 (см. рис. 2) устанавливается методом полярных координат. Например, чтобы нанести на план точку 7 (см. рис. 2а. и табл. 3) необходимо от линии I-II по ходу часовой стрелки при помощи транспортира построить угол 4845 и на стороне угла от точки I отложить отрезок 35,8 м (в масштабе плана 35,8 мм).
Около реечной точки подписывается ее номер (в числителе) и отметка (в знаменателе). Например:
. Такая запись оставляется на плане.
Горизонтали проводятся путем интерполирования отметок реечных точек. Вуальный способ интерполирования включает следующие действия (рис.4).

Рис. 3. Оформление рамки плана и размещение подписей

Рис. 4. Проведение горизонталей визуальным способом
1. Соседние точки соединяются карандашом и на полученных линиях визуально намечаются горизонтали, кратные заданной высоте сечения рельефа. На рис. 4 между точками 1 и 2 проходит одна горизонталь 26 метров при заданной высоте сечения 1 м. Расстояние от этой горизонтали до точки 1 составляет 0,9, а до точки 2 – 0,3 от заложения, соответствующего 1 м по высоте рельефа. Между точками 2 и 3 проходят две горизонтали 27 и 28 метров с соответствующими заложениями 0,7, 1,0, 0,5 и т. д.
2. Намеченные следы горизонталей между точками соединяются плавными линиями и изображаются коричневым цветов. В разрывах горизонталей тем же цветом указываются высоты горизонталей, при чем верх цифр должен быть направлен в сторону подъема (см. на рис. 8.3, б горизонталь 27 метров).
Через здания, дороги, водоемы и искусственные сооружения горизонтали не проводятся.
После полевого контроля черной тушью изображаются линии тахеометрического хода, реечные точки, местные предметы, линии дорог, границы угодий, условные знаки лесных массивов, луговая растительность, кустарники и пр.
После составления плана в карандаше его проверяют, при необходимости корректируют, а затем приступают к вычерчиванию в туши, применяя условные топографические знаки, приведенные на рис. 5.
Результаты вычислительных и графических работ оформляются в виде отчета, состоящего из титульного листа (номер страницы этого листа №1, он не подписывается), вторая и последующие страницы подписываются: стр. 2 – это табл.1 (журнал теодолитной съемки), стр.3 – абрис, стр. 4 – журнал тахеометрической съемки, стр. 5 – ведомость вычисления прямоугольных координат, стр. 6. –условные знаки, стр. 7 – план теодолитно-тахеометрической съемки.
|
| Точка теодолитного хода | | Фруктовый сад |
| | Луг | | Сплошной деревянный забор |
| | Редкий лес |
| ЛЭП низкого напряжения |
|
| Строящаяся дорога с покрытием |
| Пешеходная тропа |
| Рис. 5. Условные знаки для топографических планов масштаба 1:1000 | |||
Пример оформления плана участка местности приводится на рис. 6.

Рис. 6. Образец построения топографического плана
studfiles.net
Журнал тахеометрической съемки
(с примером обработки для варианта 36)
| №№ точек | kl | ГК | ВК | ν | d, м | h, м | Н, м | Приме- чания |
| 2 | 6 | 7 | 8 | |||||
| Станция А. 0о ГК ориентирован на п. 1. i = 1,47 м. МО = - 0о36′ НА = 151,48 м | ||||||||
| 38,3 | 350° 16' | - 4° 47' | - 4°11' | 38,1 | - 2,79 | 148,7 | ||
| 32,4 | 46° 20' | - 5° 43' | - 5° 07' | 32,1 | - 2,88 | 148,6 | ||
| 34,8 | 119° 45' | - 3° 42' | - 3° 06' | 34,7 | - 1,88 | 149,6 | ||
| 40,0 | 184° 12' | - 5° 55' | - 5° 19' | 39,7 | - 3,69 | 147,8 | ||
| 41,6 | 281° 19' | - 5° 59' | - 5° 23' | 41,2 | - 3,89 | 147,6 | ||
| Станция 1. 0о ГК ориентирован на п. 2. i = 1,51 м. МО = + 0о36′ Н1 = 145,47 м | ||||||||
| 50,4 | 47° 38' | + 2° 39' | + 2° 03' | 50,3 | + 1,80 | 147,3 | ||
| 22,7 | 46° 10' | + 2° 22' | + 1° 46' | 22,7 | + 0,70 | 146,2 | ||
| 48,3 | 171° 13' | + 2° 08' | + 1° 32' | 48,3 | + 1,29 | 146,8 | ||
| 37,0 | 208° 44' | + 0° 26' | - 0° 10' | 37,0 | - 1,10 | 144,4 | V=2,5 | |
| 42,9 | 300° 05' | + 3° 47' | + 3° 11' | 42,8 | + 1,89 | 147,4 | V=2,0 | |
| Станция 2. 0о ГК ориентирован на п. 3. i = 1,39 м. МО = - 0о36′ Н2 = 150,76 м | ||||||||
| 33,3 | 356° 34' | - 2°40' | - 2° 04' | 33,3 | - 1,20 | 149,6 | ||
| 37,4 | 61° 50' | - 2° 53' | - 2° 17' | 37,3 | - 1,49 | 149,3 | ||
| 58,5 | 121° 15' | - 2° 39' | - 2° 02' | 58,4 | - 2,68 | 148,1 | V=2,0 | |
| 52,1 | 168° 42' | - 3° 14' | - 2° 38' | 52,0 | - 2,39 | 148,4 | ||
| 36,5 | 200° 33' | - 4° 12' | - 3° 36' | 36,4 | - 2,29 | 148,5 | ||
| Станция 3. 0о ГК ориентирован на п. А. i = 1,42 м. МО = + 0о36′ Н3 = 148,64 м | ||||||||
| 62,7 | 165° 45' | + 1° 18' | + 0° 42' | 62,7 | - 0,31 | 148,3 | V=2,5 | |
| 38,9 | 57° 09' | + 0° 18' | - 0° 18' | 38,9 | - 0,20 | 148,4 | ||
| 36,4 | 345° 42' | - 1° 08' | - 1° 44' | 36,4 | - 1,10 | 147,5 | ||
| Станция 4. 0о ГК ориентирован на п. А. i = 1,50 м. МО = - 0о36′ Н4 = 145,42 м | ||||||||
| 33,0 | 62° 45' | + 0° 58' | + 1° 34' | 33,0 | + 0,90 | 146,3 | ||
| 48,5 | 283° 24' | + 1° 10' | + 1° 46' | 48,4 | + 1,49 | 146,9 | ||
| 29,4 | 234° 13' | - 2° 33' | - 1° 57' | 29,4 | - 1,00 | 144,4 |
4.3. Определение превышений
Для определения превышений используется формула, приводимая во всех учебниках, по которой составлены специальные тахеометрические таблицы:
h = 0,5 kl sin 2n + i - V, (53)
где kl – дальномерное расстояние; n - угол наклона; i – высота прибора ; V – высота наведения на рейке центральной горизонтальной нити сетки нитей зрительной трубы теодолита (указывается в примечаниях журнала тахеометрической съемки; если такого указания для точки нет, то это значит, что V = i).
При использовании для расчетов микрокалькуляторов удобно пользоваться вместо формулы (53) следующим выражением:
h = d tg n + i - V, (54)
где d - горизонтальное проложение, полученное ранее по формуле (52).
При V = i формула (54) упрощается –
h = d tg n. (55)
Значения превышений следует округлить до 0,01м.
Пример 13. Вычисление превышений (использование формул (54) и (55)).
h2 = 38,1 tg (- 40 11¢) = - 2,79 м, (V = i) и т.п.
h9 = 37,0 tg (- 00 10¢) + 1,51 – 2,50 = - 0,11 + 1,49 – 2,50 = - 1,10 м, (V ≠ i) и т.п.
4.4. Вычисление высот точек
Формула для вычисления абсолютных высот Нi точек тахеометрической съемки имеет следующий вид:
Нi = НСТАНЦИИ + hi , (56)
где НCТАНЦИИ - абсолютная высота станции, т.е. абсолютная высота точки (полюса), на которой установлен теодолит для производства тахеометрической съемки; hi - превышение съемочной точки над полюсом, вычисленное по формулам (53), (54) или (55).
В соответствии с формулой (56) абсолютные высоты съемочных точек 1-4 следует определять относительно станции А, съемочных точек 5-9 - относи-тельно станции 1 и т.д.
Значения абсолютных высот точек необходимо округлить до 0,1 м.
При вычислении абсолютных высот съемочных точек следует быть внимательным: а) использовать абсолютную высоту той станции, на которой получены соответствующие съемочные точки;б)исходной высотой для вычисления высот съемочных точек всегда является высота станции.
Пример 14. Вычисление абсолютных высот точек хода.
Н1 = 151,48 + (- 2,79) = 148,69 = 148,7 м и т.д.
H6 = 145,47 + (+ 1,80) = 147,27 = 147,3 м и т.д.
h21 = 150,76 + ( - 1,20) = 149,56 = 149,6 м и т.д.
h26 = 148,64 + (- 0,31) = 148,33 = 148,3 м и т.д.
h29 = 145,42 + ( + 0,90) = 146,32 = 146,3 м и т.д.
Аналогичный расчет высот производится и с других станций с учетом их абсолютных высот.
5. Построение плана
Цель работы– использование полевой и расчетной документации для получения графического изображения местности в заданном масштабе.
Конечный результат – топографический план местности в масштабе 1:1000.
5.1. Перечень необходимых для работы инструментов и материалов
Для построения топографического плана Вам необходимо иметь следующее:
А.Ведомости , журналы, абрисы
1. Ведомость координат точек теодолитного хода (табл. 2)
2. Ведомость высот точек теодолитного хода (табл.3)
3. Журнал тахеометрической съемки (табл.4)
Б. Инструменты
1. Линейка Дробышева или координатограф (имеются на кафедре)
2. Геодезический транспортир (имеется на кафедре)
3. Масштабная линейка (имеется на кафедре)
4. Линейка металлическая или пластмассовая длиной 30-40 см
5. Циркуль-измеритель
6. Кривоножка (при использовании туши)
7. Рейсфедер (при использовании туши)
8. Карандаши ТМ, Т – 3Т
9. Заточка для карандаша, мелкая наждачная шкурка
10. Ластик мягкий для карандаша
В. Материалы
1. Ватман размером 50 х 50 см (или формата А2)
2. Тушь цветная (черная, коричневая, зеленая). Возможна замена на гелевые ручки соответствующих цветов.
3. Калька прозрачная размером 10 х 10 см
5.2. Построение сетки квадратов и ее оцифровка
Вам необходимо построить сетку квадратов размером 30 х 30 см со стороной квадрата 100 мм. Построение сетки квадратов производится с помощью линейки Дробышева (порядок построения приведен в любом учебнике по геодезии), либо с помощью полевого координатографа. Эти инструменты имеются на кафедре геодезии. Ниже приводится методика построения сетки квадратов через графическое построение прямых углов.
На листе ватмана (рис. 4а) провести с угла на угол примерные диагонали А и Б. Затем из точки О пересечения диагоналей отложить как можно точнее одинаковые отрезки Оа, Об, Ов и Ог. Далее точки а, б, в и г соединить линиями по периметру. Получится прямоугольник абвг. На сторонах прямоугольника от точки г вверх и вправо, от точки а вправо, от точки в вверх отложить отрезки по 100 мм. В местах 1,2, …, 14 иглой измерителя сделать наколы диаметром не более 0,1 мм. Полученные наколы соединить тонкими линиями так, как это показано на рис. 4б. Получится сетка квадратов со сторонами 100 мм.

Рис. 4. Построение и оцифровка координатной сетки
Все линии построения необходимо производить карандашом Т, 2Т или 3Т, грифель которого должен быть доведен до острия на мелкой наждачной шкурке. Толщина линий допускается не более 0,1 мм. Проводить линии следует без нажима, сравнительно легким движением по бумаге. Поверхность под листом бумаги должна быть ровной. Ребро линейки и прочерченная линия должны совпадать.
Контроль построения сетки квадратов выполняется проверкой диагоналей каждого квадрата одним раствором циркуля-измерителя, равным 141,4 мм. Разности диагоналей не должны быть более 0,2 мм.
Если построение окажется некачественным, то необходимо перестроить сетку на другой стороне листа. Исправления на вычерченной сетке не допускаются.
При необходимости сетку квадратов можно сгустить до квадратов со стороной 50 мм.
Для планшетов планов, имеющих установленную номенклатуру, оцифровка выполняется независимо от результатов съемки. В данном задании смысл оцифровки сводится к тому, чтобы местность изобразилась приблизительно по середине листа, ограниченного сеткой.
При оцифровке необходимо учесть следующее:
- план местности составляется в масштабе 1:1000, т.е. сторона квадрата равна 100 м;
- на план наносят пункт А Государственной геодезической сети и точки 1, 2, 3, 4 теодолитного хода;
- примерные границы тахеометрической и горизонтальной съемки;
- подписи координатных линий должны быть кратны 100 или 50 м;
- при выбранном положении листа координаты Х возрастают снизу вверх (с юга на север), координаты Y – слева направо (с запада на восток).
Для оцифровки следует воспользоваться данными, приведенными в ведомости координат (табл. 2).
Рассмотрим пример оцифровки сетки координат (рис. 4б) по данным табл. 2 (пример для варианта № 36).
По значениям координат Х и Y выбрать их максимальные и минимальные значения:
ХМАКС @ 4831 м (точка 1) ХМИН @ 4717 м (точка 3)
YМАКС @ 7691 м (точка 1) YМИН @ 7620 м (точка 4)
По минимальным значениям Х и Y назначается оцифровка самой нижней (южной) и левой (западной) линий. Далее оцифровка увеличивается на север и на восток через 100 м. По крайним оцифрованным линиям и значениям максимальных координат Х и Y необходимо убедиться в том, что теодолитный ход полностью находится в пределах вычерченной сетки квадратов. По-возможности старайтесь, чтобы точки теодолитного хода не попадали на край внешней сетки, а находились от нее на расстоянии примерно в половину квадрата. Этот запас необходим для последующего нанесения результатов тахеометрической съемки.
Как видно из рис. 4, исходя из полученной оцифровки координатной сетки, размеры листа ватмана выбраны были со значительным запасом. После завершения построения плана лишнее чистое поле листа можно будет удалить.
5.3. Нанесение на план точек теодолитного хода
Для нанесения точек теодолитного хода можно воспользоваться поперечным масштабом, выгравированным на геодезическом транспортире, либо специальной масштабной линейке, или хорошо выверенной миллиметровой линейкой. Величины отрезков следует брать в раствор циркуля-измерителя.
Заметим, что построенная сетка квадратов далее была сгущена до квадратов со стороной 50 мм (50 м на местности в масштабе 1:1000) – рис. 5.
Предположим, что нам необходимо нанести на план точку А с координатами ХА = 4824,327 м, YА = 7624,242 м (см. табл. 2). Точка А находится выше координатной линии 4800 на 24,3 м и правее координатной линии 7600 на 24,2 м. По сторонам квадрата 48-76 необходимо отложить два раза отрезки 24,3 м и сделать наколы иглой измерителя. Диаметр наколотой точки должен быть не более 0,1 мм. Затем по ребру линейки, установленному по наколам, отложить от линии 7600 отрезок 24,2 м. В месте положения точки А сделать накол, кружком диаметром 3-4 мм мягким карандашом пометить место накола и подписать номер точки.
Далее целесообразно наносить последующие точки теодолитных ходов. После точки А следует выполнить построение точек по ходу А-1-2-3-4.
Точку 1 наносим по координатам Х1 = 4831,43 м = 4831,4 м и Y1= =7691,14м = 7691,1 м отрезком 31,4 м от линии 4800 и затем по двум наколам отрезком 91,1 м от линии 7600.
После нанесения следующей точки теодолитного хода следует проверить качество работ. Оценочный контроль нанесения точки выполняют по значению дирекционного угла (в данном случае aА1 = 83057,1¢, что соответствует направлению линии А1 на плане). Точный контроль осуществляется по величине известного (табл. 2) горизонтального проложе-ния данной линии (67,268 м). Измеренное на плане горизонтальное проложе-ние между соседними точками теодолитного хода не должно отличаться от вычисленного его значения более, чем на 0,2 мм в масштабе плана.
Последующие точки теодолитного хода можно наносить только после контроля нанесения предыдущих точек и исправления возможных графических погрешностей.
Невыполнение условий точного контроля чаще всего происходит из-за неправильного определения откладываемых отрезков, в отдельных случаях – из-за некачественного построения координатной сетки. В последнем случае сетку квадратов необходимо построить заново.
Записи на рис. 5 и линии построения даны только для пояснений в учебных целях. У Вас же после выполнения этой работы практически останутся на поле чертежа только точки теодолитного хода.

Рис. 5. Нанесение на план точек теодолитного хода и результатов тахеометрической съемки
5.4. Нанесение на план точек тахеометрической съемки
Пояснения по нанесению точек тахеометрической съемки также даны нарис.5 для каждой из станций. В работе используется геодезический транспортир (или тахеограф), циркуль-измеритель и миллиметровая линейка.
На станции А 00 горизонтального круга (ГК) ориентирован на пункт 1 теодолитного хода (см. вычисленный Вами журнал тахеометрической съемки и абрис тахеометрической съемки – приложение 6). Горизонтальные углы (полярные углы) от исходного напрвления А-1 следует откладывать по часовой стрелке (например, для точки 2 ГК = 46020¢), горизонтальные проложения с точностью до 0,1 м откладывают с помощью миллиметровой линейки от станции (полюса) А по полученным полярным направлениям на съемочные точки (для точки 2 – 32,1 м). В месте положения съемочной точки делают накол и рядом подписывают номер точки и ее абсолютную высоту (для точки 2 – 148,6 м). Для точки 4: ГК = 184012′, проложение – 39,7 м, высота – 147,8 м. Аналогично наносят остальные точки.
На станции 1 0о ГК ориентирован на пункт 2, следовательно горизонтальные углы на съемочные точки, полученные на данной станции, необходимо откладывать по часовой стрелке от линии 1-2. На рисунке показано построение точки 6.
На станции 2 0о ГК ориентирован на пункт 3, горизонтальные углы на съемочные точки откладывают по часовой стрелке от линии 2-3. На рисунке показано нанесение точки 15.
На станции 3 0о ГК ориентирован на пункт 4, горизонтальные углы на съемочные точки следует откладывать по часовой стрелке от линии 3-4. На рисунке показано нанесение точки 16.
На станции 4 0о ГК ориентирован на п. А, горизонтальные углы следует откладывать от линии 4-А по часовой стрелке. На рисунке показано нанесение точки 19.
Правильность построения точек тахеометрической съемки необходимо контролировать по абрисам тахеометрической съемки (приложение 6). Расположение съемочных точек относительно исходной линии (полярной оси) и полюса (станции) должны примерно соответствовать их расположению на абрисах.
Будьте внимательны при выборе соответствующей полярной оси при переходе нанесения съемочных точек с другой станции. Эти направления указаны в журнале и на абрисе.
5.5. Построение рельефа
На абрисах тахеометрической съемки (приложение 6) стрелками указаны линии однородных скатов (склонов) в сторону понижения рельефа. По указанным однородным скатам можно выполнять интерполирование горизонталей, кратных высоте сечения рельефа.
В Вашем задании высота сечения рельефа равна 1 м.
Принцип интерполирования горизонталей для построения рельефа показан на рис. 6.

Рис. 6. Интерполирование горизонталей
На кальке размером 8х10 см следует провести несколько (8 – 10) параллельных и равноотстоящих (через 5 – 7 мм) друг от друга линий (калька с параллельными линиями называется палеткой).
Точки 3 (Н3 = 149,6 м) и теодолитного хода 4 (Н4 = 145,4 м), как это следует из абриса тахеометрической съемки на станции 4 (приложение 6), находятся на однородном склоне. На палетке (или мысленно) оцифруем параллельные линии через 1 м, начиная с высоты, например, 145 м. Наложим палетку на линию 3-4 и установим точку 4 в положение, соответствующее ее высоте (145,4 м). Затем это положение зафиксируем иглой измерителя и провернем палетку до тех пор, пока точка 3 не установится в положение, соответствующее ее высоте (149,6 м) на шкале высот палетки. Иглой измерителя переколоть на ватман (план) все точки пересечения параллельных линий палетки с линией 3-4 и подписать места уколов соответствующими высотами (подписи горизонталей можно сделать сокращенными).
Аналогично выполняют интерполирование по другим линиям однородных склонов, указанных на абрисах линиями со стрелками (в сторону понижения рельефа).
После полного интерполирования, ориентируясь на примерные формы рельефа, указанные на абрисах, выполнить предварительную укладку горизонталей по одинаковым высотам. Целесообразно построение рельефа начинать с рисовки его по характерным линиям и четким формам (лощины - по линиям водосливов (тальвегам), хребты – по линиям водоразделов, горы (холмы) и т.п.), а затем переходить к сопряжениям между формами рельефа. Окончательная укладка горизонталей выполняется после полного уяснения рисунка рельефа, при этом производится сглаживание небольших волн в линии горизонталей до 1/4 высоты сечения рельефа.
Рисунок рельефа местности у Вас должен быть примерно похожим на рельеф плана, приведенного в приложении 8 (образец топографического учебного плана для варианта № 36).
5.6. Нанесение на план ситуации
Для нанесения ситуации следует использовать информацию, приведенную в примечаниях журнала тахеометрической съемки, абрисах тахеометрической и горизонтальной съемки (приложение 6). Помощь в этом Вам окажет и приложение 8, хотя при съемке такие большие зарисовки не выполняют.
Нанесение результатов горизонтальной съемки, выполненной способом полярных координат, угловой и линейной засечек и перпендикуляров, производится в полном соответствии с результатами измерений, приведенных на рисунке горизонтальной съемки (приложение 6). Грунтовая дорога наносится на план с учетом ее ширины. Результаты же съемки даны для середины дороги.
При нанесении результатов горизонтальной съемки на план могут не совпасть положения точек, полученных дополнительно из тахеометрической съемки. Обычно это и происходит, поскольку тахеометрическая съемка для четких контуров предусматривает, в основном, съемку рельефа в данном месте. По точности же определения планового положения точек тахеометри-ческая съемка уступает горизонтальной.
5.7. Оформление плана
План местности оформляется тушью соответствующего цвета с соблюдением требований по условным обозначениям, изложенных в руководстве [3]. Некоторые пояснения к изображению условных знаков Вы можете найти в приложении 7. Разрешается вместо туши использовать гелиевые ручки соответствующего цвета.
Оригинал изображения – черно-белый.
Горизонтали – коричневый цвет.
Координатная сетка (места пересечения координатных линий) – зеленый цвет.
Пример оформления плана приведен в приложении 8.
В левом верхнем углу плана ставится аббревиатура вуза, в правом верхнем углу – «Учебный план». Внизу по центру рисунка указать масштаб плана (высота цифр 5 мм), ниже запись «Сплошные горизонтали проведены через 1 м» - шрифтом 2,5 или 3,5 мм. В правом углу записать сведения об исполнителе работы: фамилия, учебная группа, выполненный вариант задания, фамилию преподавателя.
infopedia.su
Тахеометрическая съёмка
Тахеометрическая съёмка
Съёмка местности при тахеометрической съёмке заключается в определении наиболее характерных точек, отображающих контуры предметов и рельеф местности. На каждую снимаемую точку ставится рейка по которой определяются полярные координаты, направление, угол наклона. Снимаемые реечные точки могут быть контурными, рельефными, контурно-рельефными. Во всех случаях каждый раз берутся отсчёты по дальномерным нитям, горизонтальному и вертикальному кругу.
При тахеометрической съёмке работа на станции выполняется в следующей последовательности:
устанавливают теодолит над точкой съёмочного обоснования и приводят его в рабочее положение, т.е. центрируют и нивелируют. Затем измеряют высоту инструмента, отмечают её на рейке и записывают в тахеометрический журнал
наводят теодолит на соседнюю точку съёмочного обоснования, средней горизонтальной нитью на отмеченную высоту инструмента и берут отсчёт по КЛ. Переводят трубу через зенит и снова при КП наводят на высоту инструмента и берут отсчёт. Вычисляют место нуля.
при КЛ совмещают нуль алидады с нулём лимба, т.е. ставят отсчёт 0-0 и закрепляют защёлкой.
наводят на точки съёмочного обоснования по которым брали вертикальные углы
открепляют защёлку и наводят на все реечные точки, берут отсчёты и отсчитывают по рейке дальномерное расстояние
составляются кроки, на которых изображаются все реечные точки, зарисовывается ситуация и показывается рельеф
Все отсчеты и числовые определения записывают в соответствующие графы журнала тахеометрической съемки.
В процессе съемки на каждой станции составляют абрис – схематический чертеж ситуации и рельефа местности. Ведение абриса – ответственная часть тахеометрической съемки, т. к. он служит основой составления плана в камеральных условиях. Абрис представляет собой глазомерный чертеж, в котором отмечают место станции, предыдущую и последующую линии хода, все пикетные точки с их номерами, а также все сведения, необходимые для составления плана: характеристики населенных пунктов, рек, водоемов, урочищ, дорог, мостов, бродов, лесов и т. п.
Далее выполняются камеральные работы в следующей последовательности:
поверка записей в тахеометрическом журнале;
вычисление горизонтальных превышений и проложений;
вычисление отметок реечных точек;
построение координатной сетки;
нанесение по координатам точек съёмочного обоснования;
нанесение реечных точек по полярным координатам;
построение контуров по данным тахеометрического журнала и крок;
зарисовка рельефа по высотам реечных точек и заметкам в кроках;
вычерчивание контуров и рельефа по условным знакам заданного масштаба;
рамочное оформление составленного плана.
Главными особенностями тахеометрической съёмки является то, что на местности измеряются углы и расстояния, рисуется рельеф, составляются кроки, план составляется в камеральных условиях.
Обработка журнала тахеометрической съемки
Перед обработкой журнала необходимо сначала ознакомиться с условиями, в которых производилась съемка: как был ориентирован тахеометр, чему равен коэффициент дальномера, при каком положении прибора (КЛ или КП) производилась съемка, какова высота прибора на станции.
Углы наклона определяют по одной из формул:
= КЛ – МО
= МО – КП
Горизонтальное проложение S (графа 6) и превышение h (графа 7) определяют по формулам:
S = Д cos2 ;
h = 1/2 Д sin(2 ).
Для вычисления отметок точек Н (графа 10) необходимо выписать отметку каждой станции из ведомости вычисления отметок. Отметки реечных точек вычисляют по формуле:
Н = Нст + h.
Обработка ведомости вычисления координат
Обрабатываем ведомость вычисления координат
Записываем исходные данные;
Вычисляем сумму измеренных углов:
пр. = 1 + 2 + ….5;
Вычисляем теоретическую сумму измеренных углов:
т. = к - н + 180 n; n = 5;4)
4) Угловая невязка:
f = пр. - т.
Контроль!!!
f доп. = 2 = 3,4’
f f доп.
Распределяем угловую невязку в измеренные углы в виде поправок с противоположным знаком
i =
i = - f
Вычисляем исправленные углы:
исп. = изм.+ i
Контроль!!! исп. i =т.
i+1 =i - 180 + исп.
Контроль!!! Должны автоматически получить значение СД
Румбы определяем по формулам связи;
10) Вычисляем приращения координат
x = S * cos
y = S * sin
11) Высчитываем xпр. и yпр.;
12) xт. = xкC – xнB;
13) yт. = yкC - yнB;
14) fx = xпр. - xт.;
15) fy = yпр. - yт.;
16) fобс. =;
17) fотн. = 1:1000
18) xi ;
19) yi ;
Контроль!!! x = - fx
у = - fу
20) xисп.i = xвыч. i + xi
21) yисп. i =yвыч. i + yi
Контроль!!! xисп. = xт.
yисп. = yт.
22) Вычисляем координаты:
Xi+1 = Xi + xисп.i
Yi+1 = Yi + yисп. i
Контроль!!!
Должны автоматически получить заданные координаты XC и YC
Составление топографического плана
Составление топографического плана начинают с построения на плане координатной сетки в виде системы квадратов со стороной 10 см с помощью линейки Дробышева.
Линейка Дробышева представляет собой металлическую пластину шириной 4–5 см и длиной более 70 см. Она имеет шесть вырезов (окошек) через каждые 10 см внутренние скошенные (левые) края которых являются дугами окружностей с соответствующими радиусами. На скошенном крае первого (левого) выреза нанесен начальный штрих 0. Длина линейки от нулевого выреза до правого скошенного торцевого края составляет 70,711 см, т. е. равна длине диагонали квадрата со стороной 50 см.
Построение координатной сетки производится в следующем порядке:
1.Линейку располагают параллельно нижнему краю листа бумаги и вдоль скошенного ребра линейки проводят горизонтальную линию АВ.
2.На проведенную линию, вырезами накладывают линейку, совмещая нулевой штрих с точкой А и хорошо отточенным карандашом прочерчивают дуги вдоль скошенных краев в каждом вырезе (окне).
3.Поворачивают линейку перпендикулярно к линии АВ, располагая ее вверх от точки В. Совмещают нулевой штрих с точкой В и прочерчивают дуги по скошенным краям вырезов (окнам) линейки.

4. Укладывают линейку по диагонали. Совместив нулевой штрих с точкой А по дугообразному скошенному торцевому концу линейки, делают засечку по диагонали, получая верхнюю правую вершину квадрата – точку Д.
5.Аналогичным способом получают верхнюю левую вершину квадрата – точку С.
6. Контроль построения точек С и Д осуществляют путем совмещения нулевого штриха с точкой С и дуги шестого выреза (окна) с точкой Д. Если дуга совпадает с точкой Д, тогда через все скошенные края вырезов (окон) проводят дуги.
7. После построения и разбивки сторон основного квадрата АБСД вычерчивают внутренние линии координатной сетки, последовательно соединяя засечки дуг противоположных сторон основного квадрата.
8. Правильность построения сетки квадратов проверяют измерением их диагоналей при помощи циркуля-измерителя. Отклонения вершин не должно превышать 0,1 мм.
После построения координатную сетку оцифровывают, т. е. подписывают выходы координатной сетки согласно значениям плановых координат съемочного обоснования и принятому масштабу топографического плана.
Графическое построение плана начинают с нанесения по координатам исходных геодезических пунктов и точек съемочной сети. Для этого вначале необходимо определить квадрат, в котором должна находиться точка (пункт), а затем при помощи измерителя и поперечного масштаба отложить расстояния в заданном масштабе от соответствующих линий координатной сетки. Правильность нанесения пункта (точки) контролируется по длине и направлению линии.
Способы нанесения ситуации на план соответствуют способам их полевой съемки. Поскольку основным способом тахеометрической съемки является полярный, то для нанесения пикетов используют геодезический транспортир и поперечный масштаб или что более удобно – тахеограф, который сделан из прозрачного пластика или пластмассы и состоит из транспортира и линейки .
Угловые деления транспортира оцифрованы против хода часовой стрелки. На линейке, край которой совпадает с нулевым штрихом градусной шкалы, начиная от центра транспортира, нанесены миллиметровые деления.

При нанесении пикетов на план, центр тахеографа совмещают с точкой съемочного обоснования и вращают вокруг нее, пока на ориентируемой линии не окажется градусное деление, равное полярному углу пикета. Вдоль линейки в масштабе плана откладывают горизонтальное проложение между точкой съемочного обоснования и пикетом. Делают накол, обводят его кружком и подписывают его номер и высотную отметку. Одновременно, согласно абрису по нанесенным пикетам карандашом проводят контуры.
После переноса пикетов и контуров проводят горизонтали, пользуясь подписанными значениями отметок высот характерных точек рельефа. Процесс нахождения вспомогательных точек, отметки которых кратны принятой высоте сечения рельефа, т. е. через которые проходят горизонтали, называется интерполированием.
Интерполирование можно выполнять с помощью палетки параллельных линий. Она представляет ряд параллельных линий, которые проведены на прозрачной основе через одинаковый интервал (5–8 мм) с подписанными отметками горизонталей, соответствующих данному участку. Например, требуется определить положение горизонталей между пикетами 1 и 2. Палетку накладывают таким образом, чтобы пикет 1 находился между линиями пропорционально его высоте. Прижимают палетку в пикете 1 и вращают ее вокруг этой точки пока пикет 2 не окажется по высоте между соответствующими линиями палетки пропорционально его высоте. Точки пересечения прямой между пикетами 1 и 2 и линиями палетки переносят (перекалывают) на план. Полученные интерполированием точки с одинаковой высотой, лежащие на одном склоне соединяют плавными кривыми линиями – горизонталями. Следует помнить, что интерполировать можно только по линиям, расположенным на одном склоне. При необходимости, для лучшего изображения форм рельефа (седловины, вершины и т. д.), которые плохо отобразились основными горизонталями, на плане проводят полугоризонтали и четвертьгоризонтали.

После окончательного просмотра плана, выполненного карандашом, его вычерчивают тушью в соответствии с условными знаками для данного масштаба.
studfiles.net
Журнал тахеометрической съемки
| Номер точки стояния | Номер точек визирования | Горизонтальный круг | Среднее значение угла | Высота инструмента | Вертикальный круг | Отсчеты по дальномерной шкале (в делениях шкалы) |
| Вычисление длин линий | Средняя длина линий | Вычисление превышений | Среднее превышение | Отметки точек | |||||||||||||
| КЛКП | Отсчет | Горизонтальныйугол из полуприемов | КЛКП | Отсчет | Вертикальный угол | МО | |||||||||||||||||||
| | | | | | | | | | | | | n1 | n2 | ||||||||||||
| I | III | КЛ | 0 | 0 | 0 | 72 56 00 | 1554 | 49,75 | -0,501 | 28,200 | |||||||||||||||
| КП | |||||||||||||||||||||||||
| II | КЛ | 72 | 56 | 0 | 77,85 | ||||||||||||||||||||
| КП | 2,299 | ||||||||||||||||||||||||
| ------------------------------------------------------------------------------------------------------------------------------------- | 77,85 | ----------- | 2,300 | --------- | |||||||||||||||||||||
| II | I | КЛ | 0 | 0 | 0 | 36 57 00 | 1607 | 77,86 | -2,300 | 30,50 | |||||||||||||||
| КП | |||||||||||||||||||||||||
| III | КЛ | 36 | 57 | 0 | 79,13 | ||||||||||||||||||||
| КП | -2,800 | ||||||||||||||||||||||||
| ------------------------------------------------------------------------------------------------------------------------------------ | 79,14 | ----------- | -2,800 | --------- | |||||||||||||||||||||
| III | II | КЛ | 0 | 0 | 0 | 70 07 00 | 1572 | 79,15 | 2,800 | 27,700 | |||||||||||||||
| КП | |||||||||||||||||||||||||
| I | КЛ | 70 | 07 | 0 | 49,76 | ||||||||||||||||||||
| КП | 0,500 | ||||||||||||||||||||||||
| ---------------------------------------------------------------------------------------------------------------------------------- | 49,76 | ----------- | 0,500 | --------- | |||||||||||||||||||||
| I | III | КЛ | 49,75 | -0,501 | 28,200 | ||||||||||||||||||||
| КП | |||||||||||||||||||||||||
| II | КЛ | ||||||||||||||||||||||||
| КП | |||||||||||||||||||||||||
Таблица 4
Журнал тахеометрической съемки, ст. IV H = 79,85 м, ориентирование на ст. I (горизонтальный круг 000')
i = 1,40 м, КЛ = 242', КП = – 244', МО= +1'. Измерения выполнены при круге лево
| Номер точек | Отсчет | Угол наклона | Высота визирования, V | Горизонтальное расстояние, м | h', м | Превышение h, м | Отметка H, м | Примечание | ||
| по рейке, м | по горизонтальному кругу | по вертикальному кругу | ||||||||
| 1 | 10,0 | 50° 50' | 0° 16' | 0° 17' | i | 10,0 | 0,05 | 79,90 | Ручей | |
| 2 | 16,9 | 19° 25' | 1° 55' | 1° 56' | i | 16,9 | 0,57 | 80,42 | Ручей, тропа | |
| 3 | 12,4 | 340° 02' | 4° 08' | 4° 09' | i | 12,4 | 0,90 | 80,75 | Тропа | |
| 4 | 25,1 | 355° 15' | 2° 50' | 2° 51' | i | 25,1 | 1,25 | 81,10 | ||
| 5 | 35,9 | 5° 00' | 2° 27' | 2° 28' | i | 35,9 | 1,55 | 81,40 | Забор | |
| 6 | 28,0 | 18° 50' | 2° 40' | 2° 41' | i | 28,0 | 1,31 | 81,16 | ||
| 7 | 36,5 | 40° 23' | 2° 26' | 2° 27' | i | 36,5 | 1,56 | 81,41 | ||
| 8 | 43,6 | 53° 24' | 2° 35' | 2° 36' | 1,60 | 43,6 | 1,98 | 1,78 | 81,63 | |
| 9 | 36,5 | 66° 07' | 2° 28' | 2° 29' | i | 36,5 | 1,58 | 81,43 | Тропа | |
| 10 | 23,2 | 48° 00' | 2° 19' | 2° 20' | i | 23,2 | 0,95 | 80,80 | То же | |
| 11 | 20,2 | 80° 56' | 0° 52' | 0° 53' | i | 20,2 | 0,31 | 80,16 | Граница леса | |
| 12 | 32,5 | 86° 30' | 1° 08' | 1° 09' | i | 32,5 | 0,65 | 80,50 | То же | |
| 13 | 27,2 | 101° 12,5' | – 1° 42' | – 1° 41' | i | 27,2 | – 0,80 | 79,05 | Ручей, берег озера | |
| 14 | 14,7 | 93° 05' | – 2° 02' | – 2° 01' | i | 14,7 | – 0,52 | 79,33 | Ручей | |
| 15 | 10,7 | 191° 30' | – 4° 14' | – 4° 13' | i | 10,7 | – 0,79 | 79,06 | Берег озера | |
Отметим, что чем больше такой информации зафиксировано в полевых документах, тем проще впоследствии составлять топографический план и тем качественнее окончательный результат.
Полевой журнал и абрис являются необходимыми документами для последующих камеральных работ и составления топографического плана.
studfiles.net







= n2–n1








